| 所在地 | 朝倉市屋永4189-4 | ||
|---|---|---|---|
| 物件種目 | 貸店舗事務所 | ||
| 交通 |
甘木インター 約2km |
||
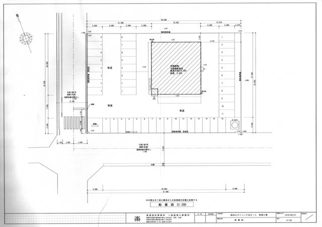
| 宅地部分 | 1652.89㎡(500坪) | 道路部分 | - |
| 地目 | 宅地 | 地勢 | 平坦 |
| 価 格 | 月/35万円+消費税 敷金4ヶ月(140万円) | ||
| 接道 | 西側約9.5m公道に約31m接道 南側約7m公道に約48m接道 |
||
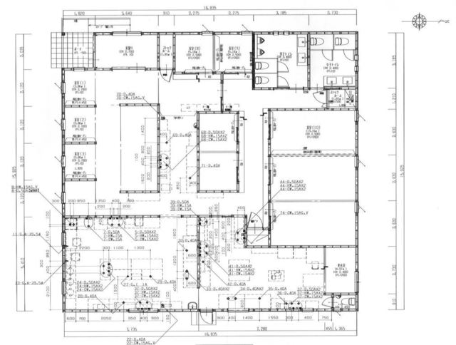
| 構造 | 木造合金メッキ剛板葺平家建 | 建築 | 平成31年2月築 |
| 部屋 | - | ||
| 合計 / 264.39㎡(79.97坪) | |||
| 間取り | - | ||
| 設備 | 上水道 下水道 プロパンガス 居抜き可 エアコン・冷蔵庫等の備品使用可(サービス品) |
||
| 都市計画 | 非線引区域 | 用途地域 | 工業地域 |
| 建蔽率 | 60% | 容積率 | 200% |
| その他法令上の制限 | - | ||
| 備考 |
500坪の敷地 駐車約40台可能 約80坪の店舗(平成31年築) 南西角地 客席・厨房ともに綺麗に使用されています。 他業種可能 近くにはたくさんの商業施設やお店があります。 ※現在営業中の為、内見等は必ず予約が必要です!! |
||





